中文
|
EN
|
繁体
国机集团网站群
首页
江南平台,江南(中国)一站式服务平台
新闻中心
业务领域
科技创新
企业文化
党群建设
人力资源
社会责任
所属企业
招标采购
江南平台,江南(中国)一站式服务平台
信息公开
设计咨询
城市规划
设计咨询
工程咨询
城市规划
医疗建筑
养老建筑
文化观演建筑
酒店建筑
教育建筑
体育建筑
城市综合体
办公建筑
科研建筑
海外建筑
生物实验
工业工程
机场物流
能源环境
室内设计
景观设计
城市规划
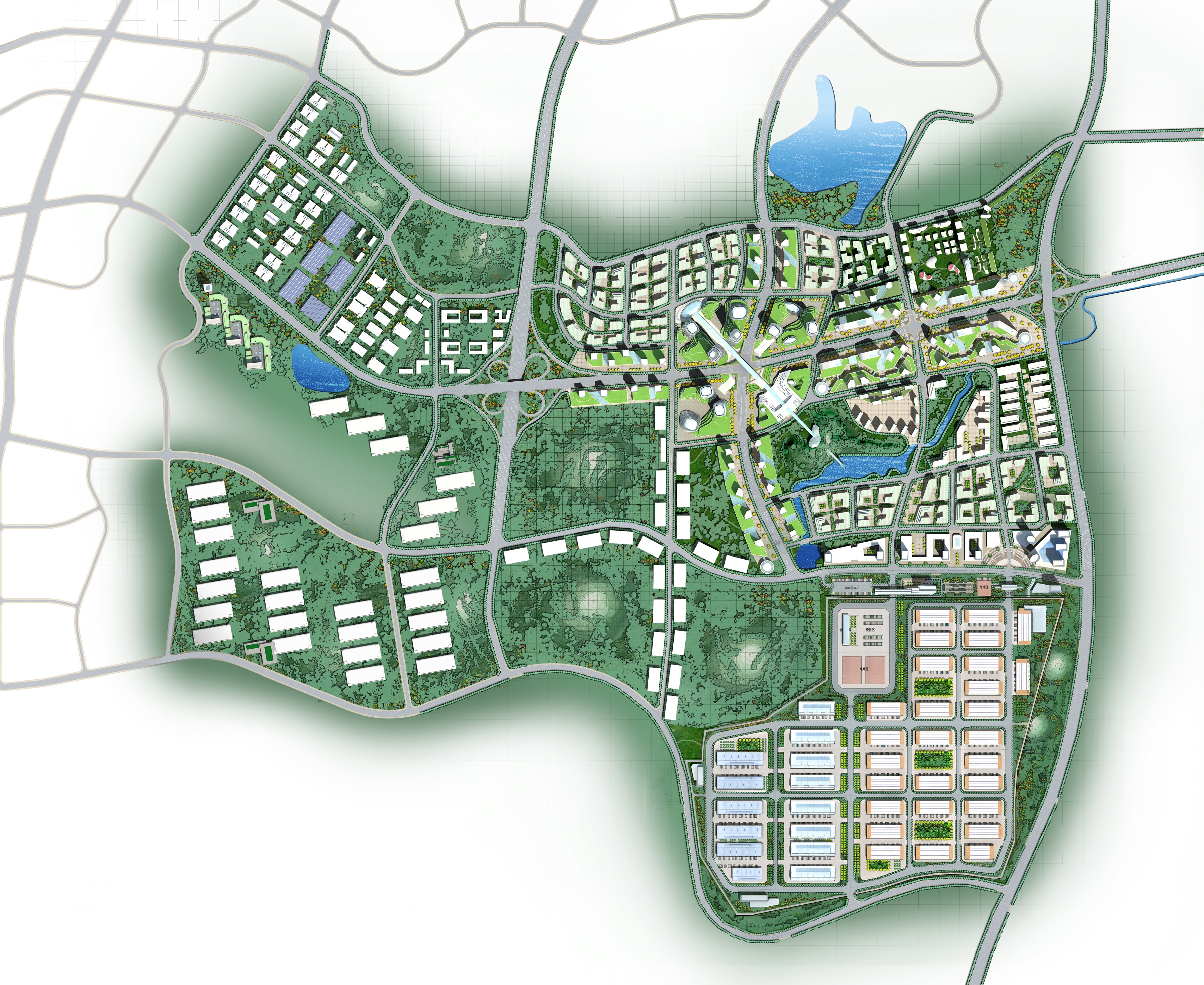
贵州云谷发展规划及城市设计
发布时间:[2019-01-25]
文章来源:
【
大
中
小
】
用地规模:
11.45
平方公里
设计时间:
2014
年
项目地点:贵州省贵安新区
爱游戏·ayx(中国)官方网站-登录入口
|
米兰体育·|(官方)在线官网
|
江南平台
|
千亿·体育(中国)官方网站-登录入口
|
k8体育平台
|
开云网页版
|
万搏官网· (中国)官方网站
|
江南官网· (中国)官方网站
|
开云手机官方网站
|